Save
Ask
Tour
Hide
$374,900
1 Day On Site
1960 Hayes Road Lot 9Spring Hope, NC 27882
For Sale|Single Family Residence|Active
4
Beds
3
Total Baths
2
Full Baths
1
Partial Bath
1,935
SqFt
$194
/SqFt
2026
Built
Subdivision:
Not in a Subdivision
County:
Nash
Due to the health concerns created by Coronavirus we are offering personal 1-1 online video walkthough tours where possible.
Call Now: 919-274-8120
Is this the listing for you? We can help make it yours.
919-274-8120

Save
Ask
Tour
Hide
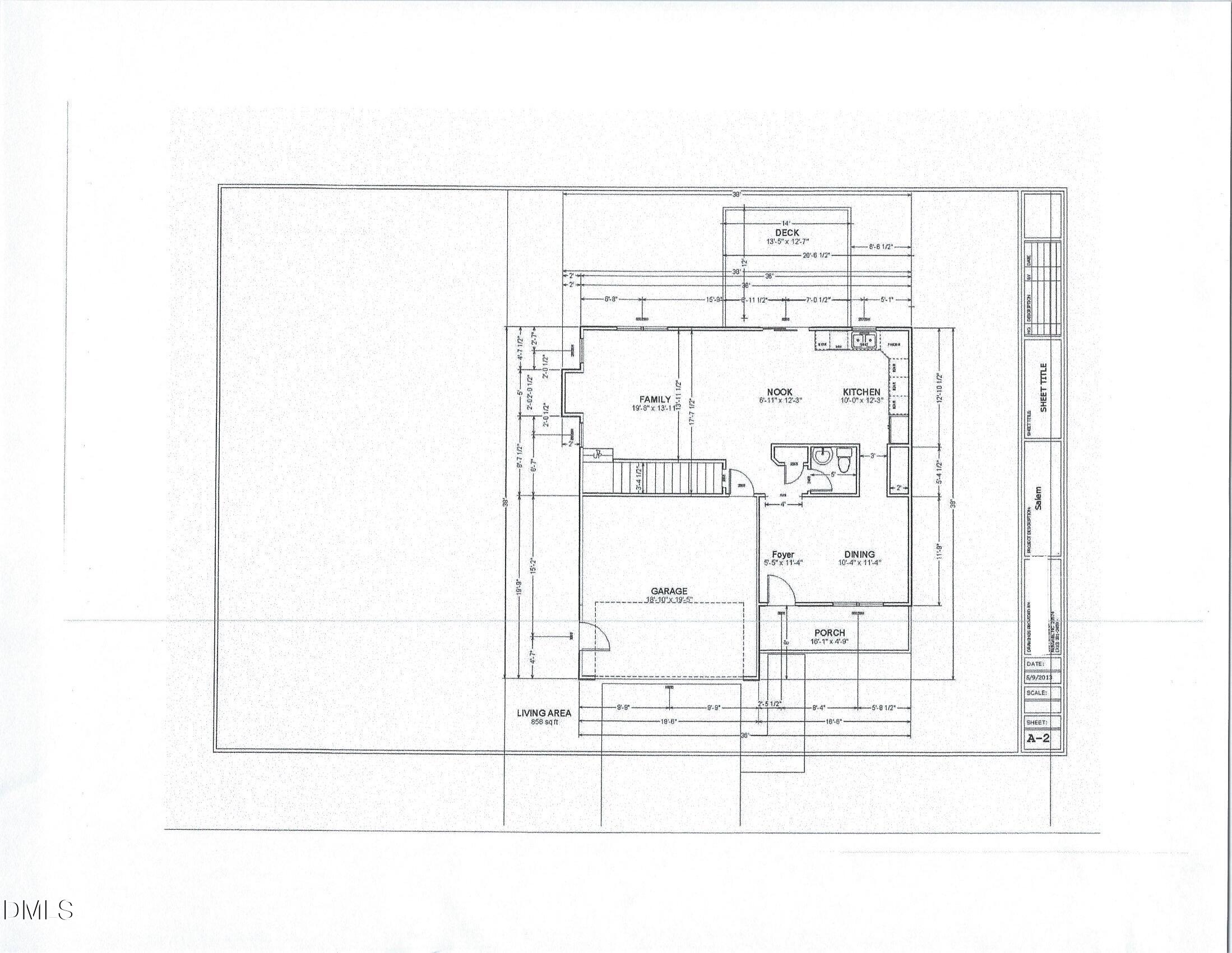
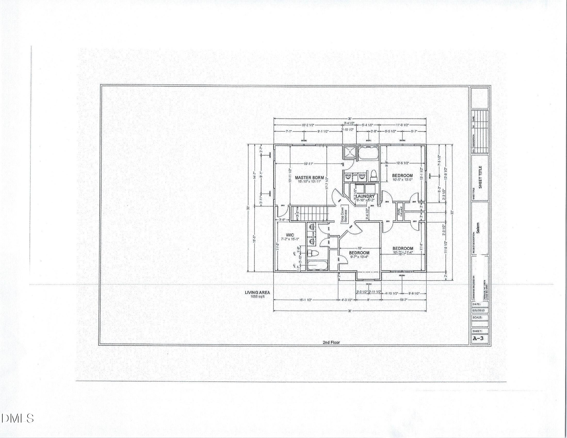
Fantastic Opportunity to buy a New Home on over an acre lot with NO Restrictions! This very popular 4-bedroom plan is hitting the market before Framing begins, and if you want to customize the finishes, you will need to act now. This Plan offers a Separate Dining Room, Spacious Family room and open kitchen PLUS a SCREENED PORCH! The owner's suite offers a dual vanity, a walk-in tiled shower, and a Soaking Tub. Beautifully private Lot surrounded by Tree's in the back. Convenient location to Bunn, Wake Forest and 64E. Builder Incentives with preferred Lender and attorney. Don't MISS!
Save
Ask
Tour
Hide
Listing Snapshot
Price
$374,900
Days On Site
1 Day
Bedrooms
4
Inside Area (SqFt)
1,935 sqft
Total Baths
3
Full Baths
2
Partial Baths
1
Lot Size
1.09 Acres
Year Built
2026
MLS® Number
10154699
Status
Active
Property Tax
N/A
HOA/Condo/Coop Fees
N/A
Sq Ft Source
N/A
Friends & Family
Recent Activity
| yesterday | Listing updated with changes from the MLS® | |
| yesterday | Listing first seen on site |
General Features
Acres
1.09
Foundation
BlockBrick/Mortar
Levels
Two
Parking
ConcreteDrivewayGarageGarage Door OpenerGarage Faces Side
Property Condition
New Construction
Property Sub Type
Single Family Residence
Security
Smoke Detector(s)
Sewer
Septic Tank
Special Circumstances
Standard
SqFt Above
1935
SqFt Total
1935
Style
CraftsmanTraditional
Utilities
Electricity Connected
Water Source
PrivateWell
Interior Features
Appliances
Electric RangeElectric Water HeaterMicrowavePlumbed For Ice MakerRange HoodStainless Steel Appliance(s)
Cooling
Central AirElectric
Flooring
CarpetCeramic TileVinyl
Heating
ElectricForced Air
Interior
Ceiling Fan(s)Crown MoldingDouble VanityEat-in KitchenEntrance FoyerGranite CountersHigh CeilingsKitchen IslandOpen FloorplanPantryRecessed LightingSoaking TubTray Ceiling(s)Walk-In Closet(s)
Window Features
Insulated Windows
Bedroom 2
Dimensions - 13 x 10.5Level - Second
Bedroom 3
Dimensions - 11.5 x 10.3Level - Second
Bedroom 4
Dimensions - 11.5 x 9.8Level - Second
Dining Room
Dimensions - 11.4 x 10.4Level - First
Family Room
Dimensions - 16 x 14Level - First
Kitchen
Dimensions - 12 x 8.6Level - First
Master Bedroom
Dimensions - 16 x 14Level - Second
Other
Dimensions - 12 x 14Level - FirstDescription - Screened Porch
Save
Ask
Tour
Hide
Exterior Features
Construction Details
Batts InsulationBlown-In InsulationFrameVinyl Siding
Fencing
None
Lot Features
WoodedLandscapedRectangular Lot
Other Structures
None
Pool Features
None
Road Frontage
County Road
Roof
Shingle
Windows/Doors
Insulated Windows
Community Features
Community Features
None
Financing Terms Available
ConventionalFHAVA LoanUSDA Loan
Horse Property
None
Roads
Asphalt
Schools
School District
Unknown
Elementary School
Franklin - Bunn
Middle School
Franklin - Bunn
High School
Franklin - Bunn
Listing courtesy of Sharon Baldwin of Sunflower Realty, LLC
Listings that are marked with an icon are provided courtesy of the Triangle MLS, Inc. of North Carolina, Internet Data Exchange Database. Copyright 2026 Triangle MLS, Inc. of North Carolina. All rights reserved.
Last checked: 2026-03-25 08:29 AM UTC
Listings that are marked with an icon are provided courtesy of the Triangle MLS, Inc. of North Carolina, Internet Data Exchange Database. Copyright 2026 Triangle MLS, Inc. of North Carolina. All rights reserved.
Last checked: 2026-03-25 08:29 AM UTC
Neighborhood & Commute
Source: Walkscore
Save
Ask
Tour
Hide

Did you know? You can invite friends and family to your search. They can join your search, rate and discuss listings with you.