Save
Ask
Tour
Hide
$400,295
2 Days On Site
28 Gerrad Street 10Franklinton, NC 27525
For Sale|Single Family Residence|Active 
3
Beds
3
Total Baths
2
Full Baths
1
Partial Bath
2,343
SqFt
$171
/SqFt
2025
Built
Subdivision:
Essex Village
County:
Franklin
Due to the health concerns created by Coronavirus we are offering personal 1-1 online video walkthough tours where possible.
 Call Now: 919-274-8120
Is this the listing for you? We can help make it yours.
919-274-8120


Save
Ask
Tour
Hide
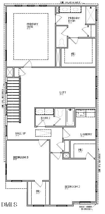
NEW PLAN!!! - Juniper, Foyer Entry - Opens to - Kitchen/Breakfast/Family Space. 12x26 Covered Porch off Rear of Home. GREAT for Entertaining or Just Relaxing. Quartz Countertops Kitchen/Bathrooms, Upgrades Cabinets, GE Gas Appliances, Drop Zone off Garage Entry, Roman Shower Primary Bath w/tile Seat, Primary, Loft and 2 Secondary Bedrooms 2nd Floor. Oak Staircase LVP Entire 1st Floor, Baths and Laundry. Home loaded with upgrades!!!!! Essex Village is The Most Affordable Housing in Franklin County
Save
Ask
Tour
Hide
Listing Snapshot
Price 
$400,295
Days On Site 
2 Days
Bedrooms 
3
Inside Area (SqFt) 
2,343 sqft
Total Baths 
3
Full Baths 
2
Partial Baths 
1
Lot Size 
0.14 Acres
Year Built 
2025
MLS® Number 
10129939
Status 
Active
Property Tax 
N/A
HOA/Condo/Coop Fees 
$29.75 monthly
Sq Ft Source 
N/A
Friends & Family
Recent Activity
| yesterday | Listing updated with changes from the MLS® | |
| 2 days ago | Listing first seen on site | 
General Features
Acres 
0.14
Attached Garage 
Yes
Foundation 
Slab
Garage 
Yes
Garage Spaces 
2
Levels 
Two
Parking 
ConcreteDrivewayGarageGarage Door OpenerAttached
Parking Spaces 
2
Property Condition 
New ConstructionUnder Construction
Property Sub Type 
Single Family Residence
Security 
Smoke Detector(s)
Sewer 
Public Sewer
SqFt Above 
2343
SqFt Total 
2343
Style 
Traditional
Water Source 
Public
Interior Features
Appliances 
DishwasherDisposalElectric Water HeaterExhaust FanGas RangeMicrowavePlumbed For Ice MakerStainless Steel Appliance(s)Vented Exhaust Fan
Cooling 
Central AirElectricZoned
Flooring 
CarpetVinyl
Heating 
Forced AirNatural GasZoned
Interior 
Double VanityEat-in KitchenEntrance FoyerKitchen IslandOpen FloorplanPantryWalk-In Closet(s)
Laundry Features 
Laundry RoomUpper Level
Bedroom 2 
Dimensions - 13 x 12Level - SecondDescription - Walk-In Closet
Bedroom 3 
Dimensions - 11 x 12Level - SecondDescription - Walk-In Closet
Breakfast Room 
Dimensions - 17 x 11Level - Main
Family Room 
Dimensions - 17 x 15Level - MainDescription - Covered Porch off Family at Backyard
Kitchen 
Dimensions - 13 x 15Level - Main
Laundry 
Dimensions - 8 x 9Level - Second
Loft 
Dimensions - 11 x 17Level - Second
Master Bedroom 
Dimensions - 17 x 14Level - SecondDescription - Walk-In closet
Other 
Dimensions - 26 x 12Level - MainDescription - Covered Porch
Save
Ask
Tour
Hide
Exterior Features
Construction Details 
Vinyl Siding
Exterior 
Private YardRain Gutters
Lot Features 
Back YardClearedFront YardLandscaped
Patio And Porch 
CoveredRear Porch
Roof 
Shingle
Community Features
Association Dues 
357
Community Features 
Sidewalks
Financing Terms Available 
CashConventionalFHAVA LoanUSDA Loan
HOA Fee Frequency 
Annually
Schools
School District
Unknown
Elementary School
Franklin - Franklinton
Middle School
Franklin - Franklinton
High School
Franklin - Franklinton
Listing courtesy of Susan Muiznieks of DRB Group North Carolina LLC
 
Listings that are marked with an icon are provided courtesy of the Triangle MLS, Inc. of North Carolina, Internet Data Exchange Database. Copyright 2025 Triangle MLS, Inc. of North Carolina. All rights reserved.
Last checked: 2025-10-29 10:22 PM UTC
 
Listings that are marked with an icon are provided courtesy of the Triangle MLS, Inc. of North Carolina, Internet Data Exchange Database. Copyright 2025 Triangle MLS, Inc. of North Carolina. All rights reserved.
Last checked: 2025-10-29 10:22 PM UTC
Neighborhood & Commute
Source: Walkscore
Save
Ask
Tour
Hide

Did you know? You can invite friends and family to your search. They can join your search, rate and discuss listings with you.